Die Wohnung liegt im Herzen von Neuenheim, einem der beliebtesten Stadtteile Heidelbergs. Zwischen dem idyllischen Neckarufer und der eleganten Parkanlage am Werderplatz genießen Sie hier sowohl die zentrale Lage als auch die Ruhe eines exklusiven Wohnquartiers.
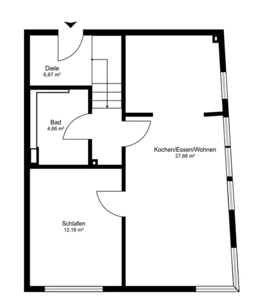
Über ein helles Treppenhaus erreichen Sie fast ebenerdig den Eingangsbereich der Wohnung. Ein freundlicher Flur mit Garderobe heißt Sie willkommen und führt über eine offene Innentreppe ins Hochparterre.
Hier öffnet sich links der großzügige Wohnbereich, der Küche, Ess- und Wohnzimmer harmonisch verbindet und mehr als die Hälfte der Wohnfläche ausmacht. Die offene Küche ist komplett ausgestattet und verfügt über einen L-förmigen Bartresen ideal für das Frühstück oder einen Kaffee am Morgen. Im Küchenbereich sind helle Fliesen verlegt, der Wohn- und Essbereich ist mit hochwertigem Stäbchenparkett ausgestattet. Große Fenster auf zwei Seiten sorgen für viel Tageslicht und ein angenehmes Raumgefühl.
Rechts von der Küche liegen d...
Über ein helles Treppenhaus erreichen Sie fast ebenerdig den Eingangsbereich der Wohnung. Ein freundlicher Flur mit Garderobe heißt Sie willkommen und führt über eine offene Innentreppe ins Hochparterre.
Hier öffnet sich links der großzügige Wohnbereich, der Küche, Ess- und Wohnzimmer harmonisch verbindet und mehr als die Hälfte der Wohnfläche ausmacht. Die offene Küche ist komplett ausgestattet und verfügt über einen L-förmigen Bartresen ideal für das Frühstück oder einen Kaffee am Morgen. Im Küchenbereich sind helle Fliesen verlegt, der Wohn- und Essbereich ist mit hochwertigem Stäbchenparkett ausgestattet. Große Fenster auf zwei Seiten sorgen für viel Tageslicht und ein angenehmes Raumgefühl.
Rechts von der Küche liegen d...
Die Wohnung liegt im Herzen von Neuenheim, einem der beliebtesten Stadtteile Heidelbergs. Zwischen dem idyllischen Neckarufer und der eleganten Parkanlage am Werderplatz genießen Sie hier sowohl die zentrale Lage als auch die Ruhe eines exklusiven Wohnquartiers.
Über ein helles Treppenhaus erreichen Sie fast ebenerdig den Eingangsbereich der Wohnung. Ein freundlicher Flur mit Garderobe heißt Sie willkommen und führt über eine offene Innentreppe ins Hochparterre.
Hier öffnet sich links der großzügige Wohnbereich, der Küche, Ess- und Wohnzimmer harmonisch verbindet und mehr als die Hälfte der Wohnfläche ausmacht. Die offene Küche ist komplett ausgestattet und verfügt über einen L-förmigen Bartresen ideal für das Frühstück oder einen Kaffee am Morgen. Im Küchenbereich sind helle Fliesen verlegt, der Wohn- und Essbereich ist mit hochwertigem Stäbchenparkett ausgestattet. Große Fenster auf zwei Seiten sorgen für viel Tageslicht und ein angenehmes Raumgefühl.
Rechts von der Küche liegen die privaten Räume. Das kompakte Badezimmer ist mit Terrakotta-Fliesen ausgestattet und verfügt über eine moderne Glasduschkabine, ein Handwaschbecken sowie ein WC. Waschmaschine und Trockner finden hier problemlos Platz. Direkt daneben liegt das Schlafzimmer mit großem, nach Norden ausgerichtetem Fenster, ebenfalls mit Stäbchenparkett ein ruhiger Rückzugsort.
Ein eigenes Kellerabteil rundet das Angebot ab und macht diese Wohnung in Neuenheim zu einem rundum attraktiven Zuhause.
Die Schröderstraße liegt im beliebten Stadtteil Neuenheim von Heidelberg, einem der attraktivsten Wohnquartiere der Stadt mit hohem Wohn‑ und Freizeitwert. Neuenheim besticht durch seinen dörflich‑urbanen Charakter mit gründerzeitlichen Wohnhäusern, ruhigen Wohnstraßen und einer guten Infrastruktur sowie Nähe zu Cafés, Einkaufsmöglichkeiten, Grünflächen und dem Neckarufer. Öffentliche Verkehrsmittel wie Straßenbahn und Bus sind fußläufig erreichbar, und auch die Heidelberger Innenstadt ist gut angebunden.
-Bezugsfrei ab: 01.04.
-Lage: Herz von Neuenheim, zwischen Neckarufer und Werderplatz, ruhiges Wohnquartier.
-Zugang: Helles Treppenhaus, fast ebenerdiger Eingangsbereich.
-Wohnbereich: Großzügig, kombiniert Wohn-, Ess- und Küchenbereich, viel Tageslicht durch große Fenster auf zwei Seiten.
-Küche: Offen, komplett ausgestattet, L-förmiger Bartresen.
-Bodenbeläge:
Wohn- und Essbereich: hochwertiges Stäbchenparkett
-Küchenbereich: helle Fliesen
-Badezimmer: Terrakotta-Fliesen
-Badezimmer: Moderne Glasduschkabine, Handwaschbecken, WC, Platz für Waschmaschine und Trockner.
-Schlafzimmer: Ruhiger Rückzugsort, großes Fenster nach Norden, Stäbchenparkett.
- Eigenes Kellerabteil vorhanden.
Über ein helles Treppenhaus erreichen Sie fast ebenerdig den Eingangsbereich der Wohnung. Ein freundlicher Flur mit Garderobe heißt Sie willkommen und führt über eine offene Innentreppe ins Hochparterre.
Hier öffnet sich links der großzügige Wohnbereich, der Küche, Ess- und Wohnzimmer harmonisch verbindet und mehr als die Hälfte der Wohnfläche ausmacht. Die offene Küche ist komplett ausgestattet und verfügt über einen L-förmigen Bartresen ideal für das Frühstück oder einen Kaffee am Morgen. Im Küchenbereich sind helle Fliesen verlegt, der Wohn- und Essbereich ist mit hochwertigem Stäbchenparkett ausgestattet. Große Fenster auf zwei Seiten sorgen für viel Tageslicht und ein angenehmes Raumgefühl.
Rechts von der Küche liegen die privaten Räume. Das kompakte Badezimmer ist mit Terrakotta-Fliesen ausgestattet und verfügt über eine moderne Glasduschkabine, ein Handwaschbecken sowie ein WC. Waschmaschine und Trockner finden hier problemlos Platz. Direkt daneben liegt das Schlafzimmer mit großem, nach Norden ausgerichtetem Fenster, ebenfalls mit Stäbchenparkett ein ruhiger Rückzugsort.
Ein eigenes Kellerabteil rundet das Angebot ab und macht diese Wohnung in Neuenheim zu einem rundum attraktiven Zuhause.
Die Schröderstraße liegt im beliebten Stadtteil Neuenheim von Heidelberg, einem der attraktivsten Wohnquartiere der Stadt mit hohem Wohn‑ und Freizeitwert. Neuenheim besticht durch seinen dörflich‑urbanen Charakter mit gründerzeitlichen Wohnhäusern, ruhigen Wohnstraßen und einer guten Infrastruktur sowie Nähe zu Cafés, Einkaufsmöglichkeiten, Grünflächen und dem Neckarufer. Öffentliche Verkehrsmittel wie Straßenbahn und Bus sind fußläufig erreichbar, und auch die Heidelberger Innenstadt ist gut angebunden.
-Bezugsfrei ab: 01.04.
-Lage: Herz von Neuenheim, zwischen Neckarufer und Werderplatz, ruhiges Wohnquartier.
-Zugang: Helles Treppenhaus, fast ebenerdiger Eingangsbereich.
-Wohnbereich: Großzügig, kombiniert Wohn-, Ess- und Küchenbereich, viel Tageslicht durch große Fenster auf zwei Seiten.
-Küche: Offen, komplett ausgestattet, L-förmiger Bartresen.
-Bodenbeläge:
Wohn- und Essbereich: hochwertiges Stäbchenparkett
-Küchenbereich: helle Fliesen
-Badezimmer: Terrakotta-Fliesen
-Badezimmer: Moderne Glasduschkabine, Handwaschbecken, WC, Platz für Waschmaschine und Trockner.
-Schlafzimmer: Ruhiger Rückzugsort, großes Fenster nach Norden, Stäbchenparkett.
- Eigenes Kellerabteil vorhanden.












