Exklusive Penthouse-Wohnung in zentraler und doch ruhiger Lage in Wiesloch. Von den beiden Stellplätzen in der hauseigenen Tiefgarage aus, fährt der Fahrstuhl rasant nach oben. Erst im zweiten Stock kommt er zum Stehen, öffnet die Türe und gibt den Weg frei in den großen Koch-, Ess- und Wohnbereich. Der lichtdurchflutete, repräsentative Raum bildet das Herzstück der hochmodernen Wohnung. Die extravagante Designer-Küche mit Kochinsel verfügt über ausnahmslos hochwertige Geräte führender Markenhersteller.
Über die gesamte Breite des Gebäudes erstreckt sich eine 30 m² große Terrasse, die durch sensorgesteuerte Glastüren hindurch betreten wird. Überhaupt sind die Fenster fast alle bodentief und sorgen so für viel natürliches Licht im Innenbereich. Die übrige Wohnfläche, des insgesamt über 147 m² großen Appartements verteilt sich auf drei weitere Zimmer. Die beiden kompakteren Räume eignen sich hervorragend als Kinder- oder Homeoffice-Zimmer und haben ein eigenes Bad mit ebenerdig begehb...
Über die gesamte Breite des Gebäudes erstreckt sich eine 30 m² große Terrasse, die durch sensorgesteuerte Glastüren hindurch betreten wird. Überhaupt sind die Fenster fast alle bodentief und sorgen so für viel natürliches Licht im Innenbereich. Die übrige Wohnfläche, des insgesamt über 147 m² großen Appartements verteilt sich auf drei weitere Zimmer. Die beiden kompakteren Räume eignen sich hervorragend als Kinder- oder Homeoffice-Zimmer und haben ein eigenes Bad mit ebenerdig begehb...
Exklusive Penthouse-Wohnung in zentraler und doch ruhiger Lage in Wiesloch. Von den beiden Stellplätzen in der hauseigenen Tiefgarage aus, fährt der Fahrstuhl rasant nach oben. Erst im zweiten Stock kommt er zum Stehen, öffnet die Türe und gibt den Weg frei in den großen Koch-, Ess- und Wohnbereich. Der lichtdurchflutete, repräsentative Raum bildet das Herzstück der hochmodernen Wohnung. Die extravagante Designer-Küche mit Kochinsel verfügt über ausnahmslos hochwertige Geräte führender Markenhersteller.
Über die gesamte Breite des Gebäudes erstreckt sich eine 30 m² große Terrasse, die durch sensorgesteuerte Glastüren hindurch betreten wird. Überhaupt sind die Fenster fast alle bodentief und sorgen so für viel natürliches Licht im Innenbereich. Die übrige Wohnfläche, des insgesamt über 147 m² großen Appartements verteilt sich auf drei weitere Zimmer. Die beiden kompakteren Räume eignen sich hervorragend als Kinder- oder Homeoffice-Zimmer und haben ein eigenes Bad mit ebenerdig begehbarer Glasduschkabine.
Das große Elternschlafzimmer befindet sich auf der gegenüberliegenden Seite mit einem großen Badezimmer en suite und separatem WC. Auch diese Bad-Räume sind mit hochwertigen Designer-Armaturen und einer ebenerdig begehbaren Glasduschkabine ausgestattet. Die Bad-Böden sind mit hellen Steinfliesen ausgelegt, während der Rest des Penthouses mit Eichenholz-Parkettboden ausgestattet ist. Die Raumtemperaturen in der gesamten Wohnung werden über eine moderne Fußbodenheizung und eine integrierte Klimaanlage gesteuert.
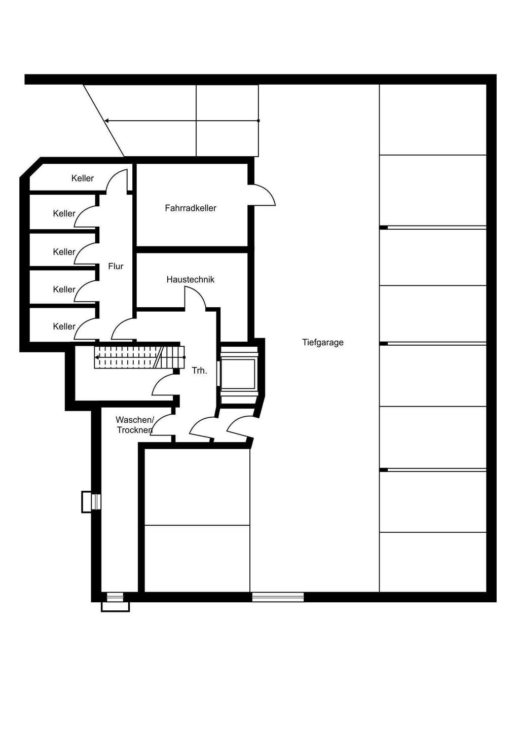
Im Untergeschoss des Hauses sind zwei Tiefgaragenstellplätze mit eigener Elektro-Tankstelle den Bewohnern des Appartements zugeordnet. Eine große Waschküche, ein eigener Kellerraum und ein geräumiger Fahrradkeller runden das Wohnerlebnis praktisch ab. Neben der Nutzung des Hauslifts kann die Wohnung selbstverständlich auch zu Fuß über das Treppenhaus erreicht werden.
Die fußläufig erreichbaren Cafés, Boutiquen, Geschäfte und der beliebte Wochenmarkt prägen das Leben im Stadtzentrum. Das ausgezeichnete Schulangebot, die guten Radwege und das exzellente ÖPNV-Netz kennzeichnen die Stadt. Das Veranstaltungshaus Palatin, die Bücherei und das Multiplex-Kino sind Kultureinrichtungen, die Besucher aus der gesamten Region anziehen. Exzellente Verkehrsanbindung, das breite Sport- und Freizeitangebot, sowie die nahgelegenen Weinbau- und Grünflächen machen Wiesloch zum idealen Wohnort.
- Zwei Garagenstellplätze mit Elektrotankstelle
- Fahrstuhlanlage direkt in die Wohneinheit
- Hochwertige Einbauküche mit Kochinsel
- Hell geflieste Bäder mit Designarmaturen
- Ebenerdig begehbare Glasduschkabinen.
- Bodentiefe Fenster
- Vollholzparkettboden aus Eiche
- Energiesparende Fußbodenheizung
- Klimaanlage
- Kellerraum
- Videogegensprechanlage
Über die gesamte Breite des Gebäudes erstreckt sich eine 30 m² große Terrasse, die durch sensorgesteuerte Glastüren hindurch betreten wird. Überhaupt sind die Fenster fast alle bodentief und sorgen so für viel natürliches Licht im Innenbereich. Die übrige Wohnfläche, des insgesamt über 147 m² großen Appartements verteilt sich auf drei weitere Zimmer. Die beiden kompakteren Räume eignen sich hervorragend als Kinder- oder Homeoffice-Zimmer und haben ein eigenes Bad mit ebenerdig begehbarer Glasduschkabine.
Das große Elternschlafzimmer befindet sich auf der gegenüberliegenden Seite mit einem großen Badezimmer en suite und separatem WC. Auch diese Bad-Räume sind mit hochwertigen Designer-Armaturen und einer ebenerdig begehbaren Glasduschkabine ausgestattet. Die Bad-Böden sind mit hellen Steinfliesen ausgelegt, während der Rest des Penthouses mit Eichenholz-Parkettboden ausgestattet ist. Die Raumtemperaturen in der gesamten Wohnung werden über eine moderne Fußbodenheizung und eine integrierte Klimaanlage gesteuert.
Im Untergeschoss des Hauses sind zwei Tiefgaragenstellplätze mit eigener Elektro-Tankstelle den Bewohnern des Appartements zugeordnet. Eine große Waschküche, ein eigener Kellerraum und ein geräumiger Fahrradkeller runden das Wohnerlebnis praktisch ab. Neben der Nutzung des Hauslifts kann die Wohnung selbstverständlich auch zu Fuß über das Treppenhaus erreicht werden.
Die fußläufig erreichbaren Cafés, Boutiquen, Geschäfte und der beliebte Wochenmarkt prägen das Leben im Stadtzentrum. Das ausgezeichnete Schulangebot, die guten Radwege und das exzellente ÖPNV-Netz kennzeichnen die Stadt. Das Veranstaltungshaus Palatin, die Bücherei und das Multiplex-Kino sind Kultureinrichtungen, die Besucher aus der gesamten Region anziehen. Exzellente Verkehrsanbindung, das breite Sport- und Freizeitangebot, sowie die nahgelegenen Weinbau- und Grünflächen machen Wiesloch zum idealen Wohnort.
- Zwei Garagenstellplätze mit Elektrotankstelle
- Fahrstuhlanlage direkt in die Wohneinheit
- Hochwertige Einbauküche mit Kochinsel
- Hell geflieste Bäder mit Designarmaturen
- Ebenerdig begehbare Glasduschkabinen.
- Bodentiefe Fenster
- Vollholzparkettboden aus Eiche
- Energiesparende Fußbodenheizung
- Klimaanlage
- Kellerraum
- Videogegensprechanlage
















