Dieses großzügige Haus bietet Ihnen viel Charme, sondern auch die seltene Gelegenheit, ein zusätzliches unbebautes Grundstück zu erwerben. Das Anwesen besticht durch seine ruhige und dennoch zentrale Lage in Frohnau, einem
der begehrten Viertel Berlins. Das Haus, das in den 1930er Jahren erbaut wurde, bietet auf einer Wohnfläche von
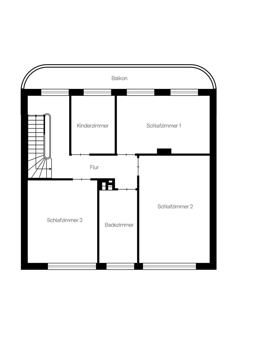
ca. 245 m2 ausreichend Platz für eine Familie. Mit einer Bruttogesamtfläche von ca. 460 m2 eröffnet sich zudem viel Potenzial für Um- und Ausbaumaßnahmen. Der Dachstuhl wurde nach einem Brand im Jahr 1962 neu errichtet und höher gestaltet, was die Möglichkeit für zusätzlichen Ausbau bietet. Das angrenzende unbebaute Grundstück erweitert die Möglichkeiten und bietet zusätzliches Entwicklungspotenzial. Hier können Sie Ihre eigenen Vorstellungen und
Pläne verwirklichen. Die Immobilie ist zudem Teil des neuen Bebauungsplans im Bezirk Reinickendorf, was zusätzliche Planungsfreiheit bietet.
Dieses Objekt ist perfekt für Familien, die eine langfristige Investition...
der begehrten Viertel Berlins. Das Haus, das in den 1930er Jahren erbaut wurde, bietet auf einer Wohnfläche von
ca. 245 m2 ausreichend Platz für eine Familie. Mit einer Bruttogesamtfläche von ca. 460 m2 eröffnet sich zudem viel Potenzial für Um- und Ausbaumaßnahmen. Der Dachstuhl wurde nach einem Brand im Jahr 1962 neu errichtet und höher gestaltet, was die Möglichkeit für zusätzlichen Ausbau bietet. Das angrenzende unbebaute Grundstück erweitert die Möglichkeiten und bietet zusätzliches Entwicklungspotenzial. Hier können Sie Ihre eigenen Vorstellungen und
Pläne verwirklichen. Die Immobilie ist zudem Teil des neuen Bebauungsplans im Bezirk Reinickendorf, was zusätzliche Planungsfreiheit bietet.
Dieses Objekt ist perfekt für Familien, die eine langfristige Investition...
Dieses großzügige Haus bietet Ihnen viel Charme, sondern auch die seltene Gelegenheit, ein zusätzliches unbebautes Grundstück zu erwerben. Das Anwesen besticht durch seine ruhige und dennoch zentrale Lage in Frohnau, einem
der begehrten Viertel Berlins. Das Haus, das in den 1930er Jahren erbaut wurde, bietet auf einer Wohnfläche von
ca. 245 m2 ausreichend Platz für eine Familie. Mit einer Bruttogesamtfläche von ca. 460 m2 eröffnet sich zudem viel Potenzial für Um- und Ausbaumaßnahmen. Der Dachstuhl wurde nach einem Brand im Jahr 1962 neu errichtet und höher gestaltet, was die Möglichkeit für zusätzlichen Ausbau bietet. Das angrenzende unbebaute Grundstück erweitert die Möglichkeiten und bietet zusätzliches Entwicklungspotenzial. Hier können Sie Ihre eigenen Vorstellungen und
Pläne verwirklichen. Die Immobilie ist zudem Teil des neuen Bebauungsplans im Bezirk Reinickendorf, was zusätzliche Planungsfreiheit bietet.
Dieses Objekt ist perfekt für Familien, die eine langfristige Investition in ein Zuhause mit vielen Möglichkeiten suchen.
Das Haus liegt im Berliner Ortsteil Frohnau, einem der grünsten und ruhigsten Viertel der Hauptstadt. Frohnau zeichnet sich durch seine gehobene Wohnqualität, die Nähe zur Natur und eine hervorragende Anbindung an das Berliner Stadtzentrum aus. In wenigen Gehminuten erreichen Sie den charmanten Frohnauer Ortskern mit seinen Einkaufsmöglichkeiten, Cafés und Restaurants. Auch Schulen, Kindergärten und Ärzte sind in der unmittelbaren Umgebung vorhanden, was die Lage besonders attraktiv für Familien macht. Die Anbindung an den öffentlichen Nahverkehr ist ideal: Der S-Bahnhof Frohnau ist nur wenige Minuten entfernt und bietet eine schnelle Verbindung in die Berliner Innenstadt. Mit dem Auto erreichen Sie das Zentrum über die nahegelegene A111 in kurzer Zeit. Trotz der guten Verkehrsanbindung genießen Sie in der Markgrafenstraße eine ruhige und naturnahe Umgebung mit zahlreichen Grünflächen und Erholungsmöglichkeiten, wie dem beliebten Freizeit- und Wandergebiet Tegeler Forst.
In Frohnau finden Sie die perfekte Balance zwischen städtischem Komfort und naturnaher Idylle – eine ideale Wohnlage für Familien, die eine hohe Lebensqualität in einem gepflegten Umfeld suchen.
- Parkett
- großer Garten
- ruhige Lage
Angrenzendes Flurstück inkludiert
- Rüdesheimer Str. 38 B
- Grundstücksgröße 404 m²
- Wegerecht und Versorgungsrecht sind eingetragen
der begehrten Viertel Berlins. Das Haus, das in den 1930er Jahren erbaut wurde, bietet auf einer Wohnfläche von
ca. 245 m2 ausreichend Platz für eine Familie. Mit einer Bruttogesamtfläche von ca. 460 m2 eröffnet sich zudem viel Potenzial für Um- und Ausbaumaßnahmen. Der Dachstuhl wurde nach einem Brand im Jahr 1962 neu errichtet und höher gestaltet, was die Möglichkeit für zusätzlichen Ausbau bietet. Das angrenzende unbebaute Grundstück erweitert die Möglichkeiten und bietet zusätzliches Entwicklungspotenzial. Hier können Sie Ihre eigenen Vorstellungen und
Pläne verwirklichen. Die Immobilie ist zudem Teil des neuen Bebauungsplans im Bezirk Reinickendorf, was zusätzliche Planungsfreiheit bietet.
Dieses Objekt ist perfekt für Familien, die eine langfristige Investition in ein Zuhause mit vielen Möglichkeiten suchen.
Das Haus liegt im Berliner Ortsteil Frohnau, einem der grünsten und ruhigsten Viertel der Hauptstadt. Frohnau zeichnet sich durch seine gehobene Wohnqualität, die Nähe zur Natur und eine hervorragende Anbindung an das Berliner Stadtzentrum aus. In wenigen Gehminuten erreichen Sie den charmanten Frohnauer Ortskern mit seinen Einkaufsmöglichkeiten, Cafés und Restaurants. Auch Schulen, Kindergärten und Ärzte sind in der unmittelbaren Umgebung vorhanden, was die Lage besonders attraktiv für Familien macht. Die Anbindung an den öffentlichen Nahverkehr ist ideal: Der S-Bahnhof Frohnau ist nur wenige Minuten entfernt und bietet eine schnelle Verbindung in die Berliner Innenstadt. Mit dem Auto erreichen Sie das Zentrum über die nahegelegene A111 in kurzer Zeit. Trotz der guten Verkehrsanbindung genießen Sie in der Markgrafenstraße eine ruhige und naturnahe Umgebung mit zahlreichen Grünflächen und Erholungsmöglichkeiten, wie dem beliebten Freizeit- und Wandergebiet Tegeler Forst.
In Frohnau finden Sie die perfekte Balance zwischen städtischem Komfort und naturnaher Idylle – eine ideale Wohnlage für Familien, die eine hohe Lebensqualität in einem gepflegten Umfeld suchen.
- Parkett
- großer Garten
- ruhige Lage
Angrenzendes Flurstück inkludiert
- Rüdesheimer Str. 38 B
- Grundstücksgröße 404 m²
- Wegerecht und Versorgungsrecht sind eingetragen
























