Solln – gerade die Villenkolonie um die Ludwigshöher Straße – ist eine der begehrtesten Lagen in ganz München und, sobald man sich dort umschaut, versteht man sofort, weshalb: Die Bebauung ist ausgesprochen großzügig, die Grundstücke weitläufig, und die flache, breite Isar fließt direkt am Wohngebiet entlang. Insbesondere im Fall der angebotenen Wohnung, die nur 50 m Luftlinie davon entfernt ist. Das Haus, in dem die Altbauwohnung die zwei oberen Geschosse einnimmt, steht auf einem Eckgrundstück mit Garten, der anteilig den drei Wohneinheiten zugewiesen ist und von diesen jeweils exklusiv genutzt werden kann. Das Haus selbst wurde, ganz im Stile der Sollner Villenkolonie, von Karl Klinger erbaut und steht, wie fast alle Häuser in der Straße, unter Ensembleschutz. Im Sommer ist das Haus mit wildem Wein bewachsen, was den romantischen Stil unterstreicht und sich ideal in das schöne Sollner Umfeld fügt.
Die Wohnung begeht man im 2. Obergeschoss, ohne weitere Nachbarn auf dieser Ebene. Na...
Die Wohnung begeht man im 2. Obergeschoss, ohne weitere Nachbarn auf dieser Ebene. Na...
Solln – gerade die Villenkolonie um die Ludwigshöher Straße – ist eine der begehrtesten Lagen in ganz München und, sobald man sich dort umschaut, versteht man sofort, weshalb: Die Bebauung ist ausgesprochen großzügig, die Grundstücke weitläufig, und die flache, breite Isar fließt direkt am Wohngebiet entlang. Insbesondere im Fall der angebotenen Wohnung, die nur 50 m Luftlinie davon entfernt ist. Das Haus, in dem die Altbauwohnung die zwei oberen Geschosse einnimmt, steht auf einem Eckgrundstück mit Garten, der anteilig den drei Wohneinheiten zugewiesen ist und von diesen jeweils exklusiv genutzt werden kann. Das Haus selbst wurde, ganz im Stile der Sollner Villenkolonie, von Karl Klinger erbaut und steht, wie fast alle Häuser in der Straße, unter Ensembleschutz. Im Sommer ist das Haus mit wildem Wein bewachsen, was den romantischen Stil unterstreicht und sich ideal in das schöne Sollner Umfeld fügt.
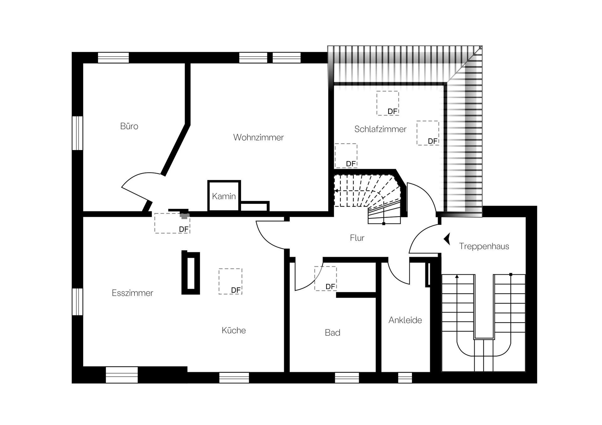
Die Wohnung begeht man im 2. Obergeschoss, ohne weitere Nachbarn auf dieser Ebene. Nach Betreten der Wohnung fallen als erstes die gebeizten massiven Eichendielen auf, die in allen Wohnräumen liegen und sich in einem sehr schönen Zustand befinden. Der Grundriss ist ausgesprochen praktisch und funktional und nutzt die Wohnfläche bestmöglich aus, sodass sich diverse Möglichkeiten ergeben, die Wohnung zu nutzen. Der vordere Teil der Wohnung eignet sich hervorragend als Schlafbereich. Hier befindet sich ein helles, nahezu quadratisches Zimmer auf der rechten Seite und eine nominelle Abstellkammer direkt gegenüber. Diese wurde zum begehbaren Kleiderschrank umfunktioniert und ist mit einem Regalsystem ausgestattet, das im Kaufpreis inklusive ist. So kann man das Schlafzimmer ausschließlich als solches nutzen, ohne sich Gedanken über einen sperrigen Kleiderschrank machen zu müssen. Das Schlafzimmer hat leichte Schrägen und insgesamt 12 m² Netto-Wohnfläche. Die Ankleide 5 m². Folgt man dem Flur, vorbei an der weißen Holztreppe, die ins Obergeschoss führt, gelangt man auf der linken Seite zum großen Badezimmer, das über eine große, neue Dusche mit neuen Armaturen und einem Doppelwaschbecken verfügt. Natürlich mit Tageslicht und Blick in den Garten.
Der Flur führt, getrennt mit einer antiken Holztür, in die offene Küche mit Essbereich. Die schöne Edelstahleinbauküche wurde hier als Raumtrenner eingesetzt und trennt den gefliesten Küchenbereich vom geräumigen Essbereich, in dem man bequem einen Tisch für 8-10 Personen platzieren kann. Durch die Tatsache, dass die Wohnung nach Süden ausgerichtet ist und die ganze Etage einnimmt, hat man hier Tageslicht aus drei Himmelsrichtungen. Küche und Esszimmer öffnen sich nach rechts zum großen Wohnzimmer mit Kamin, der so platziert ist, dass er in beiden Räumen genutzt werden kann. Der ehemals 32 m² große Wohnraum wurde nachträglich mit einer Wand in ein Büro von 12 m² und ein 20 m² großes Wohnzimmer geteilt. Diese Trennung ist ausgesprochen sinnvoll, um ein weiteres Schlafzimmer zu kreieren, kann aber auch leicht rückgängig gemacht werden, sollte man die Wohnung zum Beispiel als Paar ohne Kinder nutzen wollen. Das Wohnzimmer ist mit einer Glasschiebetür vom Esszimmer getrennt und bietet auch in der aktuellen Grundriss-Version ausreichend Platz – gerade weil das Esszimmer ausgelagert ist. Die zwei Ostfenster werden hier zusätzlich von Glasbausteinen und dem gläsernen Zugang zum Esszimmer ergänzt, was auch diesen Raum ausgesprochen hell und freundlich macht.
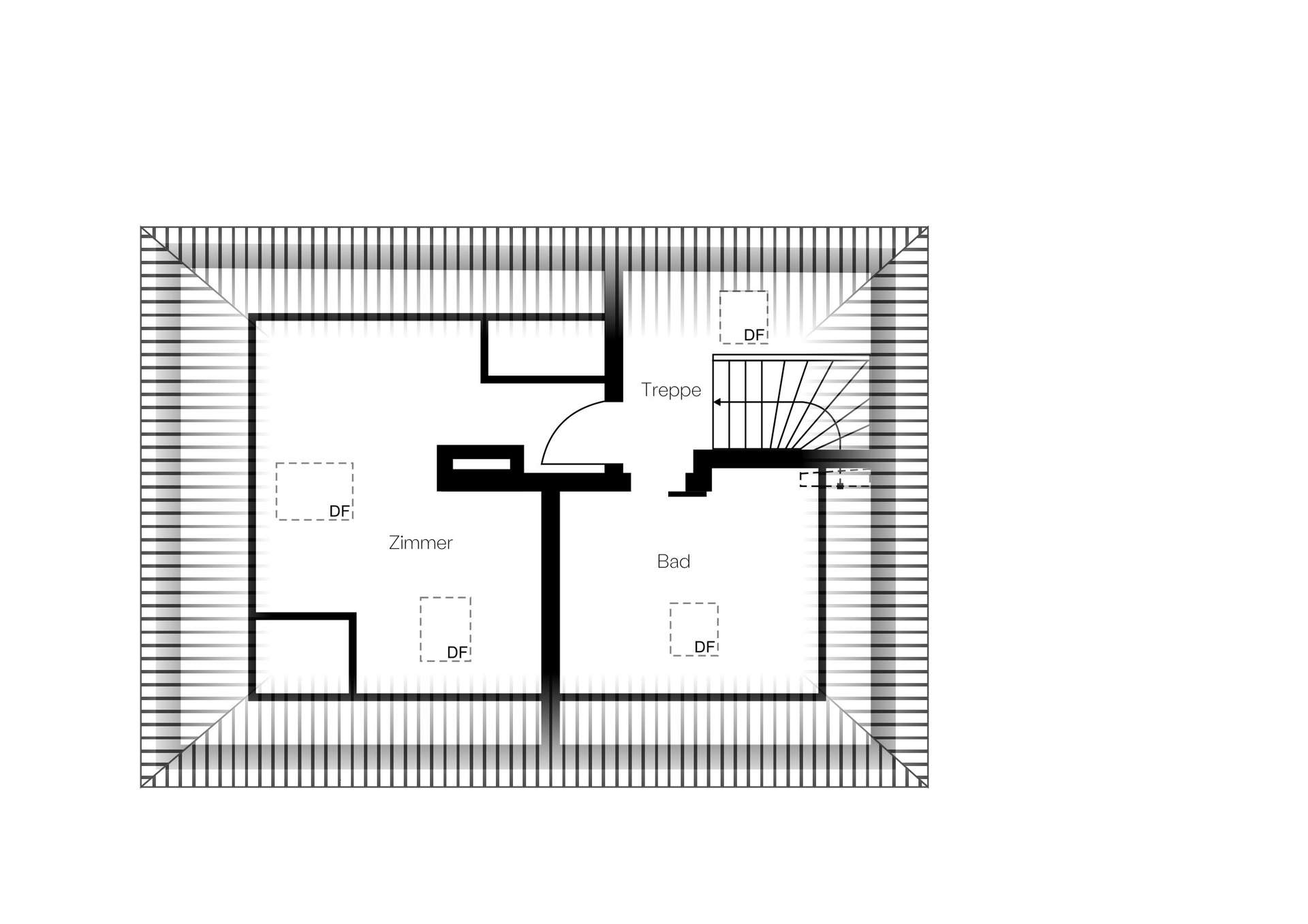
Das Wohngeschoss bietet somit knapp 91 m² Wohnfläche und kaum Schrägen, was den Grundriss sehr praktisch gestaltet. Zusätzlich gehört zur Wohnung aber auch der vollwertig ausgebaute Speicher, den man über eine schöne, weiß lackierte Holztreppe erreicht. Hier wurden zusätzliche 12 m² erschaffen, die sich in ein kleines Zimmer mit zwei Dachfenstern und ein Bad mit Badewanne aufteilen. Das Zimmer mit 7 m² Fläche eignet sich hervorragend als kleines Büro, und der Schnitt erlaubt es, hier einen Schreibtisch in einer Nische zu platzieren, an dem man bequem arbeiten kann. Umgeben von Dachfenstern ist es hier ausgesprochen hell und freundlich. Das schön ausgestattete Bad ist direkt nebenan. Auch ein Spielzimmer für die Kinder oder ein Gästezimmer ist hier denkbar. So "entlastet" man das Wohngeschoss auf sehr sinnvolle Weise und schafft sich ein kleines Refugium – ganz in Ruhe mit Blick auf die umliegenden Bäume. Im gesamten Dachgeschoss – auch im Bad – liegen wunderschöne, antike Holzdielen.
Im Garten befindet sich außerdem ein dezidiertes Abteil mit kleiner Rasenfläche und Freisitz, der mit Kies ausgelegt ist und so die Möglichkeit bietet, sich hier bei schönem Wetter aufzuhalten, kleinere Feste zu veranstalten oder bei schönem Wetter zu essen. Zur Wohnung gehört ein großer Gewölbekeller, der sich gut eignet, um Wein, Ski oder Fahrräder zu lagern.
Die Wohnung eignet sich hervorragend für Singles oder ein Paar oder mit bis zu einem Kind, da zwei große Schlafzimmer und das ausgebaute Dach den Platz dafür bieten. Dank der Ankleide und dem potenziellen Spielzimmer wird der eigentliche Grundriss angenehm entlastet und sorgt dafür, dass die Zimmer optimal genutzt werden können.
Die Sollner Villenkolonie rund um die Ludwigshöher Straße gehört zu den charmantesten Wohngegenden Münchens. Geprägt von historischen Villen, weitläufigen Grundstücken und einer ruhigen, grünen Umgebung, bietet sie ein exklusives Wohngefühl mit zugleich hervorragender Anbindung an die Stadt. Die Mischung aus herrschaftlicher Architektur und der Nähe zur Isar und dem Forstenrieder Park macht das Viertel besonders lebenswert. Die Kolonie entstand um die Wende zum 20. Jahrhundert, als sich Solln von einem kleinen Dorf zu einer begehrten Wohngegend für wohlhabende Münchner entwickelte. Die Isar ist in wenigen Minuten zu erreichen, und 200 m entfernt befindet sich auch der Golfclub Thalkirchen mit einem 9-Loch-Platz. Das Umfeld ist – gerade in den Sommermonaten – ideal, um sich zu jeder Tageszeit an der frischen Luft zu bewegen, zu joggen oder den Hund auszuführen. Die Innenstadt ist mit dem Auto in unter 20 Minuten zu erreichen, die Bahn fährt ebenfalls in unter 18 min an den Hauptbahnhof. Wie fast überall in München ist die Infrastruktur auch hier hervorragend. Diverse Supermärkte sind in unmittelbarer Nähe, und die Autobahn ist nicht weit – aber außer Hörweite. Der Bus 135 fährt direkt vor dem Haus ab.
- neue Gasheizung in 2021 verbaut
- Fenster doppelt verglast
- Gartenanteil
- Edelstahl Einbauküche
- Parkettboden
- zeitgemäße Badezimmer
- Süd-Ausrichtung
- fantastische Isarlage
- Einbauregale
- offener, moderner Kamin auf zwei Seiten
- zwei Schlafzimmer + Büro-/Gäste-/Spielzimmer
- Fenster in allen Räumen
Die Wohnung begeht man im 2. Obergeschoss, ohne weitere Nachbarn auf dieser Ebene. Nach Betreten der Wohnung fallen als erstes die gebeizten massiven Eichendielen auf, die in allen Wohnräumen liegen und sich in einem sehr schönen Zustand befinden. Der Grundriss ist ausgesprochen praktisch und funktional und nutzt die Wohnfläche bestmöglich aus, sodass sich diverse Möglichkeiten ergeben, die Wohnung zu nutzen. Der vordere Teil der Wohnung eignet sich hervorragend als Schlafbereich. Hier befindet sich ein helles, nahezu quadratisches Zimmer auf der rechten Seite und eine nominelle Abstellkammer direkt gegenüber. Diese wurde zum begehbaren Kleiderschrank umfunktioniert und ist mit einem Regalsystem ausgestattet, das im Kaufpreis inklusive ist. So kann man das Schlafzimmer ausschließlich als solches nutzen, ohne sich Gedanken über einen sperrigen Kleiderschrank machen zu müssen. Das Schlafzimmer hat leichte Schrägen und insgesamt 12 m² Netto-Wohnfläche. Die Ankleide 5 m². Folgt man dem Flur, vorbei an der weißen Holztreppe, die ins Obergeschoss führt, gelangt man auf der linken Seite zum großen Badezimmer, das über eine große, neue Dusche mit neuen Armaturen und einem Doppelwaschbecken verfügt. Natürlich mit Tageslicht und Blick in den Garten.
Der Flur führt, getrennt mit einer antiken Holztür, in die offene Küche mit Essbereich. Die schöne Edelstahleinbauküche wurde hier als Raumtrenner eingesetzt und trennt den gefliesten Küchenbereich vom geräumigen Essbereich, in dem man bequem einen Tisch für 8-10 Personen platzieren kann. Durch die Tatsache, dass die Wohnung nach Süden ausgerichtet ist und die ganze Etage einnimmt, hat man hier Tageslicht aus drei Himmelsrichtungen. Küche und Esszimmer öffnen sich nach rechts zum großen Wohnzimmer mit Kamin, der so platziert ist, dass er in beiden Räumen genutzt werden kann. Der ehemals 32 m² große Wohnraum wurde nachträglich mit einer Wand in ein Büro von 12 m² und ein 20 m² großes Wohnzimmer geteilt. Diese Trennung ist ausgesprochen sinnvoll, um ein weiteres Schlafzimmer zu kreieren, kann aber auch leicht rückgängig gemacht werden, sollte man die Wohnung zum Beispiel als Paar ohne Kinder nutzen wollen. Das Wohnzimmer ist mit einer Glasschiebetür vom Esszimmer getrennt und bietet auch in der aktuellen Grundriss-Version ausreichend Platz – gerade weil das Esszimmer ausgelagert ist. Die zwei Ostfenster werden hier zusätzlich von Glasbausteinen und dem gläsernen Zugang zum Esszimmer ergänzt, was auch diesen Raum ausgesprochen hell und freundlich macht.
Das Wohngeschoss bietet somit knapp 91 m² Wohnfläche und kaum Schrägen, was den Grundriss sehr praktisch gestaltet. Zusätzlich gehört zur Wohnung aber auch der vollwertig ausgebaute Speicher, den man über eine schöne, weiß lackierte Holztreppe erreicht. Hier wurden zusätzliche 12 m² erschaffen, die sich in ein kleines Zimmer mit zwei Dachfenstern und ein Bad mit Badewanne aufteilen. Das Zimmer mit 7 m² Fläche eignet sich hervorragend als kleines Büro, und der Schnitt erlaubt es, hier einen Schreibtisch in einer Nische zu platzieren, an dem man bequem arbeiten kann. Umgeben von Dachfenstern ist es hier ausgesprochen hell und freundlich. Das schön ausgestattete Bad ist direkt nebenan. Auch ein Spielzimmer für die Kinder oder ein Gästezimmer ist hier denkbar. So "entlastet" man das Wohngeschoss auf sehr sinnvolle Weise und schafft sich ein kleines Refugium – ganz in Ruhe mit Blick auf die umliegenden Bäume. Im gesamten Dachgeschoss – auch im Bad – liegen wunderschöne, antike Holzdielen.
Im Garten befindet sich außerdem ein dezidiertes Abteil mit kleiner Rasenfläche und Freisitz, der mit Kies ausgelegt ist und so die Möglichkeit bietet, sich hier bei schönem Wetter aufzuhalten, kleinere Feste zu veranstalten oder bei schönem Wetter zu essen. Zur Wohnung gehört ein großer Gewölbekeller, der sich gut eignet, um Wein, Ski oder Fahrräder zu lagern.
Die Wohnung eignet sich hervorragend für Singles oder ein Paar oder mit bis zu einem Kind, da zwei große Schlafzimmer und das ausgebaute Dach den Platz dafür bieten. Dank der Ankleide und dem potenziellen Spielzimmer wird der eigentliche Grundriss angenehm entlastet und sorgt dafür, dass die Zimmer optimal genutzt werden können.
Die Sollner Villenkolonie rund um die Ludwigshöher Straße gehört zu den charmantesten Wohngegenden Münchens. Geprägt von historischen Villen, weitläufigen Grundstücken und einer ruhigen, grünen Umgebung, bietet sie ein exklusives Wohngefühl mit zugleich hervorragender Anbindung an die Stadt. Die Mischung aus herrschaftlicher Architektur und der Nähe zur Isar und dem Forstenrieder Park macht das Viertel besonders lebenswert. Die Kolonie entstand um die Wende zum 20. Jahrhundert, als sich Solln von einem kleinen Dorf zu einer begehrten Wohngegend für wohlhabende Münchner entwickelte. Die Isar ist in wenigen Minuten zu erreichen, und 200 m entfernt befindet sich auch der Golfclub Thalkirchen mit einem 9-Loch-Platz. Das Umfeld ist – gerade in den Sommermonaten – ideal, um sich zu jeder Tageszeit an der frischen Luft zu bewegen, zu joggen oder den Hund auszuführen. Die Innenstadt ist mit dem Auto in unter 20 Minuten zu erreichen, die Bahn fährt ebenfalls in unter 18 min an den Hauptbahnhof. Wie fast überall in München ist die Infrastruktur auch hier hervorragend. Diverse Supermärkte sind in unmittelbarer Nähe, und die Autobahn ist nicht weit – aber außer Hörweite. Der Bus 135 fährt direkt vor dem Haus ab.
- neue Gasheizung in 2021 verbaut
- Fenster doppelt verglast
- Gartenanteil
- Edelstahl Einbauküche
- Parkettboden
- zeitgemäße Badezimmer
- Süd-Ausrichtung
- fantastische Isarlage
- Einbauregale
- offener, moderner Kamin auf zwei Seiten
- zwei Schlafzimmer + Büro-/Gäste-/Spielzimmer
- Fenster in allen Räumen























