Elegante Altbauwohnung in Gründerzeitvilla. Hoch über den Dächern der Heidelberger Südstadt, in der Panoramastraße, liegt diese exklusive 3,5-Zimmer-Wohnung.
Über die Stufen des Treppenhauses oder bequem mit dem Aufzug erreicht man den Wohnungseingang im Hochparterre. Rechterhand in östlicher Richtung erstreckt sich der großzügige, lichtdurchflutete Wohnbereich. Dieser ist, wie auch die gesamte Wohnung, mit Eichen-Fischgrätparkett ausgestattet. Durch die große Fensterfront schweift der Blick über den gesamten Stadtteil; bei klarer Sicht bis hin zu den Pfälzer Bergen. Die kleine Vorderterrasse lädt nachmittags zum Sonnenbad mit Fernblick.
Ebenfalls in östlicher Richtung liegt die große, an den Wohnbereich angeschlossene Wohnküche mit kleinem Serviceraum. Sie ist mit hochwertigen Materialien (Nussbaum, Edelstahl, italienischem Stein) ausgestattet und verfügt über moderne Küchengeräte der Marken Miele und Siemens, großzügige Arbeitsflächen und ein Gaskochfeld. Ein Bartresen lädt zum g...
Über die Stufen des Treppenhauses oder bequem mit dem Aufzug erreicht man den Wohnungseingang im Hochparterre. Rechterhand in östlicher Richtung erstreckt sich der großzügige, lichtdurchflutete Wohnbereich. Dieser ist, wie auch die gesamte Wohnung, mit Eichen-Fischgrätparkett ausgestattet. Durch die große Fensterfront schweift der Blick über den gesamten Stadtteil; bei klarer Sicht bis hin zu den Pfälzer Bergen. Die kleine Vorderterrasse lädt nachmittags zum Sonnenbad mit Fernblick.
Ebenfalls in östlicher Richtung liegt die große, an den Wohnbereich angeschlossene Wohnküche mit kleinem Serviceraum. Sie ist mit hochwertigen Materialien (Nussbaum, Edelstahl, italienischem Stein) ausgestattet und verfügt über moderne Küchengeräte der Marken Miele und Siemens, großzügige Arbeitsflächen und ein Gaskochfeld. Ein Bartresen lädt zum g...
Elegante Altbauwohnung in Gründerzeitvilla. Hoch über den Dächern der Heidelberger Südstadt, in der Panoramastraße, liegt diese exklusive 3,5-Zimmer-Wohnung.
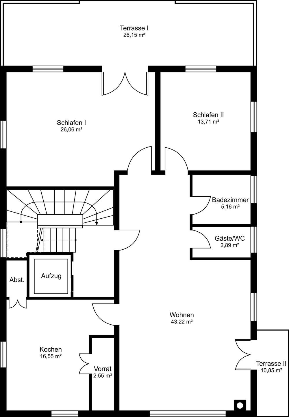
Über die Stufen des Treppenhauses oder bequem mit dem Aufzug erreicht man den Wohnungseingang im Hochparterre. Rechterhand in östlicher Richtung erstreckt sich der großzügige, lichtdurchflutete Wohnbereich. Dieser ist, wie auch die gesamte Wohnung, mit Eichen-Fischgrätparkett ausgestattet. Durch die große Fensterfront schweift der Blick über den gesamten Stadtteil; bei klarer Sicht bis hin zu den Pfälzer Bergen. Die kleine Vorderterrasse lädt nachmittags zum Sonnenbad mit Fernblick.
Ebenfalls in östlicher Richtung liegt die große, an den Wohnbereich angeschlossene Wohnküche mit kleinem Serviceraum. Sie ist mit hochwertigen Materialien (Nussbaum, Edelstahl, italienischem Stein) ausgestattet und verfügt über moderne Küchengeräte der Marken Miele und Siemens, großzügige Arbeitsflächen und ein Gaskochfeld. Ein Bartresen lädt zum gemütlichen Beisammensein oder zum schnellen Frühstück am Morgen.
Auf der Hangseite befinden sich die beiden Schlafzimmer, von denen sich das das kleinere auch trefflich als Arbeitszimmer nutzen lässt. Beide Räume verfügen über einen jeweils separaten Zugang zur ca. 26qm-großen Terrasse, die über eine Sandsteintreppe mit einem liebevoll angelegten Waldgarten verbunden ist. Mittig zwischen Ost- und Westhälfte befinden sich das modern ausgestattete Tageslicht-Bad und das kleine Gäste-WC, das ebenfalls über ein Fenster verfügt. Das Badezimmer ist mit einer großzügigen, ebenerdig begehbaren Regendusche und einem Doppelwaschbecken ausgestattet.
Die ruhige, schöne Panoramastraße liegt strategisch günstig auf halber Strecke zwischen urbaner Weststadt und historisch geprägtem Rohrbach. Mit den nahegelegenen Straßenbahnlinien 23 und 24 und der S-Bahn sind das Heidelberger Stadtzentrum und der Hauptbahnhof binnen weniger Minuten per ÖPNV zu erreichen. Natur- und Sportbegeisterte nutzen die Nähe zum Waldrand für reichhaltige Freizeitaktivitäten. Eine Vielzahl von Schulen, Restaurants, Banken, Bäckereien, Apotheken und Fachgeschäfte sind binnen weniger Minuten mit dem Fahrrad oder sogar fußläufig zu erreichen. Außerdem besteht eine sehr gute Verkehrsanbindung an die A5 und A6.
Alle Räume verfügen über Fußbodenheizung, elektrische Rollläden und Lichtdimmer.
Über die Stufen des Treppenhauses oder bequem mit dem Aufzug erreicht man den Wohnungseingang im Hochparterre. Rechterhand in östlicher Richtung erstreckt sich der großzügige, lichtdurchflutete Wohnbereich. Dieser ist, wie auch die gesamte Wohnung, mit Eichen-Fischgrätparkett ausgestattet. Durch die große Fensterfront schweift der Blick über den gesamten Stadtteil; bei klarer Sicht bis hin zu den Pfälzer Bergen. Die kleine Vorderterrasse lädt nachmittags zum Sonnenbad mit Fernblick.
Ebenfalls in östlicher Richtung liegt die große, an den Wohnbereich angeschlossene Wohnküche mit kleinem Serviceraum. Sie ist mit hochwertigen Materialien (Nussbaum, Edelstahl, italienischem Stein) ausgestattet und verfügt über moderne Küchengeräte der Marken Miele und Siemens, großzügige Arbeitsflächen und ein Gaskochfeld. Ein Bartresen lädt zum gemütlichen Beisammensein oder zum schnellen Frühstück am Morgen.
Auf der Hangseite befinden sich die beiden Schlafzimmer, von denen sich das das kleinere auch trefflich als Arbeitszimmer nutzen lässt. Beide Räume verfügen über einen jeweils separaten Zugang zur ca. 26qm-großen Terrasse, die über eine Sandsteintreppe mit einem liebevoll angelegten Waldgarten verbunden ist. Mittig zwischen Ost- und Westhälfte befinden sich das modern ausgestattete Tageslicht-Bad und das kleine Gäste-WC, das ebenfalls über ein Fenster verfügt. Das Badezimmer ist mit einer großzügigen, ebenerdig begehbaren Regendusche und einem Doppelwaschbecken ausgestattet.
Die ruhige, schöne Panoramastraße liegt strategisch günstig auf halber Strecke zwischen urbaner Weststadt und historisch geprägtem Rohrbach. Mit den nahegelegenen Straßenbahnlinien 23 und 24 und der S-Bahn sind das Heidelberger Stadtzentrum und der Hauptbahnhof binnen weniger Minuten per ÖPNV zu erreichen. Natur- und Sportbegeisterte nutzen die Nähe zum Waldrand für reichhaltige Freizeitaktivitäten. Eine Vielzahl von Schulen, Restaurants, Banken, Bäckereien, Apotheken und Fachgeschäfte sind binnen weniger Minuten mit dem Fahrrad oder sogar fußläufig zu erreichen. Außerdem besteht eine sehr gute Verkehrsanbindung an die A5 und A6.
Alle Räume verfügen über Fußbodenheizung, elektrische Rollläden und Lichtdimmer.



















